|
 |
联系电话:0373-5115833
传真: 0373-5115660
手机:13937370710
13523858580
联系人:巩经理
邮箱:thzdjx@163.com
地址:新乡市高新技术开发区
|
|
|
|
|
|
|
| 利星振动筛介绍操作螺旋输送机字母型号机器意义 |
| 发表人:新乡市利星机械有限公司 |
发表时间:2012-07-17 |
新闻动态 |
|
 |
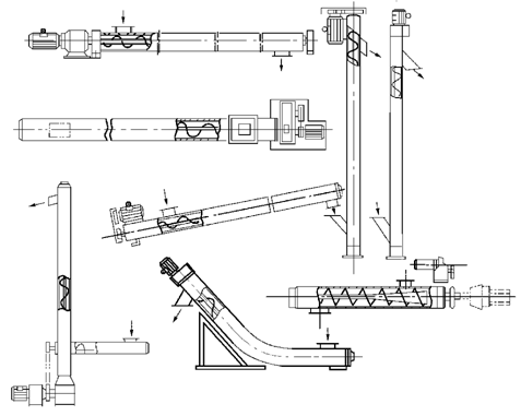
螺旋输送机也被成为绞龙,它是一种主要用于在短距离水平、倾斜或垂直方面输送散体物料的连续性输送机械。螺旋输送机主要特点是:结构简单、外形尺寸小、造价低、密封性好、可实现多点进卸 料、对物料有搅拌混合作用,但其输送距离小,叶片和机壳易磨损,能耗较高,对物料破碎作用较强。根据螺旋输送机结构特点和以及螺旋输送机的独特性能,其可以用于粮油、饲料加工厂生产工艺过程中物料的输送。但是也要注意,螺旋输送机不宜输送大块的、含纤维性杂质较多的、磨损性很强、易破碎或易粘结的物料,以免造成堵塞和物料的破碎。按安装形式螺旋输送机可分为固定式和移动式,按输送方向或工作转速可分为水平慢速和垂直快速两种,工程实际中较常用的为固定式、水平慢速螺旋输送机。 螺旋输送机的型号表示也是由四部分组成,利星振动筛公司技术人员给你介绍一下,详细情况如下所示: LS——品种代号(螺旋输送机); S——型式代号(水平式);(立式和移动式螺旋输送机的型号代号分别为L和Y); 25——规格代号[螺旋叶片直径D(cm)]。 螺旋输送机主要结构均由驱动轮、张紧轮和挠性牵引构件组成,因此,通常称它们为具有挠性牵引构件的输送设备。螺旋输送机则不同,它是以一刚性的螺旋体作为主要构件而实现物料输送的,通常称它为具有刚性“牵引”构件的输送设备。 新乡市利星机械有限公司专业生产三次元振动筛分过滤机、旋振筛、直线振动筛、气流筛、摇摆筛、检验筛、试验筛、拍击筛、轻型振动筛、超声波振动筛、重型振动筛、圆振筛、直线筛、圆辊筛、回旋筛、精密筛、脱水筛、节肢振动筛、直排筛、振动给料机、振动电机、激振器、大小球团耐磨辊及各种筛板等产品,具有设计合理、制造精良、工作性能好、安装方便、使用寿命长等优点,且我公司产品价格合理,公司可按客户的要求特殊设计生产。 |
|
| |
 |
|